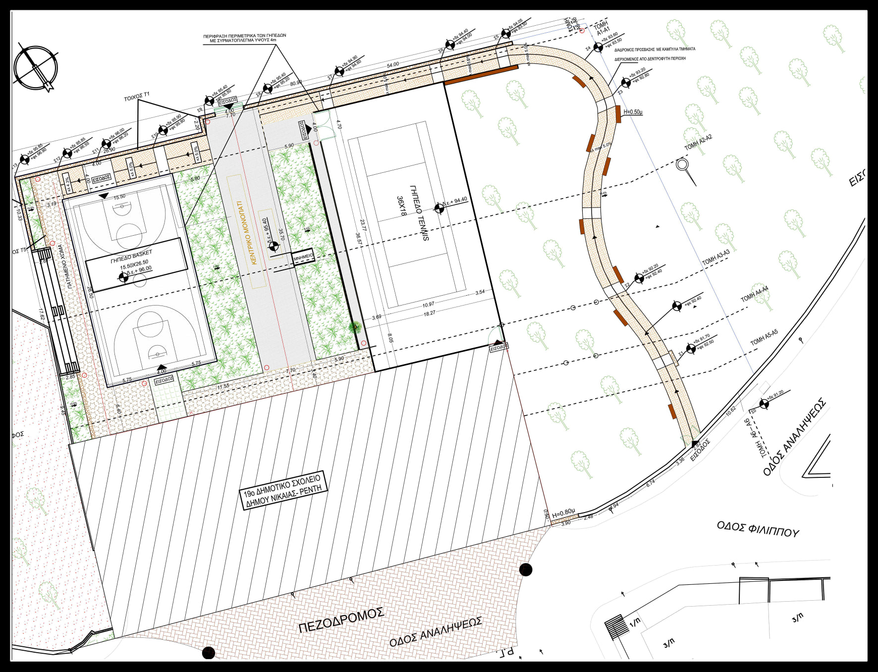
Γήπεδα και Πράσινο στο σχέδιο ανάπλασης του παλιού νεκροταφείου Νεάπολης
Με δυο γήπεδα (μπάσκετ και τένις) ξεκινά το έργο ανάπλασης του παλαιού νεκροταφείου Νεάπολης, προϋπολογισμού 600.000€ με χρηματοδότηση της Περιφέρειας Αττικής. Το συγκεκριμένο έργο αφορά στο νότιο τμήμα του παλαιού νεκροταφείου, πίσω από το 19ο Δημοτικό Σχολείο Νίκαιας.
Ο Δήμαρχος Νίκαιας-Αγ.Ι. Ρέντη Γιώργος Ιωακειμίδης επισημαίνει:
«Το συγκεκριμένο έργο ήταν δέσμευσή μας όταν ολοκληρώσαμε την κατασκευή του 19ου Δημοτικού Σχολείου Νίκαιας. Η πανδημία και η γραφειοκρατία καθυστέρησαν την έναρξη των εργασιών για ένα χρόνο. Είναι κοινή πεποίθηση ότι δεν μπορούμε να μιλάμε για ποιότητα ζωής αν αυτή δε συνοδεύεται από περιβαλλοντική ισορροπία. Γι’αυτό το λόγο και στη μελέτη έχει συνυπολογιστεί η αξιοποίηση του φυσικού και αστικού περιβάλλοντος. Παράλληλα με τα δυο γήπεδα θα προχωρήσουμε και σε παρεμβάσεις με στόχο την εξασφάλιση της βιώσιμης ανάπτυξης. Θέλω να πιστεύω ότι μέσα στο καλοκαίρι αυτός ο δημόσιος ανοιχτός χώρος θα είναι έτοιμος να υποδεχθεί τους κατοίκους .Είναι η αρχή για μια σειρά έργων που έχουν προγραμματιστεί συνολικά στο παλαιό νεκροταφείο Νεάπολης αναβαθμίζοντας αισθητά τη γειτονιά και το περιβάλλον».


